world-e
ww-ulme
- Registriert
- 10. März 2017
- Beiträge
- 162
Hallo zusammen,
möchte hier mal mein Projekt vorstellen, das gerade in Bearbeitung ist. Das Material steht soweit fest bzw. ist schon da und kann eher schwer geändert werden. Fragen werde ich ebenfalls hier einstellen.
Da meine Ausstattung und Fähigkeiten begrenzt sind, muss ich fertige Sachen (vom schwedischen Möbelhaus. darf man das hier überhaupt nennen bzw. benutzen?) zurückgreifen. Es komplett selber zu bauen, war nie relevant.
Komponenten
Aufbau
Oberflächenbehandlung
Bei meinen Fensterbänke habe ich Osmo Topoil zum Ölen benutzt. Bin damit auch ziemlich zufrieden. Sind allerdings auch nur Fensterbänke, die nicht so arg mit Wasser beaufschlagt werden. Braucht auch seine Zeit, mit der Schutz besser wird. Einige Tage nach dem Ölen hat man Wasserflecken schnell gesehen, jetzt muss Wasser schon länger drauf bleiben, bis Wasserflecken sichtbar werden. Auch Isopropylalkohol konnte man zum Entfernen von Kleberesten verwenden, ohne sichtbare Schäden. Wir wollten auch nicht, dass das Holz zu arg anfeuert, was mit dem TopOil farblos matt funktioniert hat.
Fragen

möchte hier mal mein Projekt vorstellen, das gerade in Bearbeitung ist. Das Material steht soweit fest bzw. ist schon da und kann eher schwer geändert werden. Fragen werde ich ebenfalls hier einstellen.
Da meine Ausstattung und Fähigkeiten begrenzt sind, muss ich fertige Sachen (vom schwedischen Möbelhaus. darf man das hier überhaupt nennen bzw. benutzen?) zurückgreifen. Es komplett selber zu bauen, war nie relevant.
Komponenten
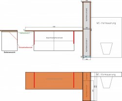
- Waschtischunterschrank
- 2 Apothekerschränke
- Waschtischplatte aus 19mm Leimholz Eiche
- 2 Seitenteile aus 19mm Leimholz Eiche
- Oberteil aus 19mm Leimholz Eiche
- Die Eichenplatten habe ich fertig zugesägt gekauft. Gestern habe ich die Kanten mit meiner Katsu gefräst.
- Nächster Schritt ist das Schleifen und Ölen der Platten
Aufbau
- beide Apothekerschränke stehen aufeinander, sodass sie knapp 160cm hoch sind. Dies fungiert als Trennwand zwischen Waschtisch und WC.
- beide Apothekerschränke sollen auf beiden Seiten mit dem Leimholz als Seitenwangen verkleidet werden.
- Die Seitenwangen werden an der Wand befestigt. Evtl. noch an der Vormauerung vom WC.
- Auf die beiden Seitenwangen kommt eine Deckplatte aus gleichem Material
- Waschtischunterschrank kommt an die Wand
- Waschtischplatte kommt auf den Waschtischunterschrank, sodass links und rechts neben dem Waschtischunterschrank noch Platz für Handtücher etc. ist.
- An den Teilen, die direkt auf dem Boden stehen soll auf den unteren paar cm ringsum ein Blech (Edelstahl oder Aluminium) angebracht werden, damit man dort den Boden wischen kann. Also als Schmutzkante.
Oberflächenbehandlung
Bei meinen Fensterbänke habe ich Osmo Topoil zum Ölen benutzt. Bin damit auch ziemlich zufrieden. Sind allerdings auch nur Fensterbänke, die nicht so arg mit Wasser beaufschlagt werden. Braucht auch seine Zeit, mit der Schutz besser wird. Einige Tage nach dem Ölen hat man Wasserflecken schnell gesehen, jetzt muss Wasser schon länger drauf bleiben, bis Wasserflecken sichtbar werden. Auch Isopropylalkohol konnte man zum Entfernen von Kleberesten verwenden, ohne sichtbare Schäden. Wir wollten auch nicht, dass das Holz zu arg anfeuert, was mit dem TopOil farblos matt funktioniert hat.
Fragen
- Hat jemand einen direkten Vergleich zwischen TopOil und anderen Ölen und deren wasserabweisenden Fähigkeiten?
- Wäre ein matter Lack besser? Kann man den als Laie verarbeiten?
- Sind für die Waschtischplatte Gratleisten nötig? Bisher sieht man schon, dass die Platten leicht gebogen sind. Wenn die Waschtischplatte dann auf den Waschtischunterschrank geschraubt wird, wird biegen auch verhindert. Und der seitliche Überstand ist nicht sonderlich groß. Gibt es Gratleisten die man auf so eine relativ dünne Platte schrauben kann?

