Hi Holger!
Super, Danke Dir für die Antwort! nach einigem suchen gestern (ich hatte die Maschine auf dem Kopf liegen) habe ich den Ring auch gesehen (aber hier nicht mehr geantwortet - vielleicht hilft es ja wem anders noch) - und habe sogar eine (zu kleine) Zange dafür

das entfernen war also eher kein Problem, und hätte ich von oben in die Säge geschaut, hätte ich den Ring auch eher entdeckt...

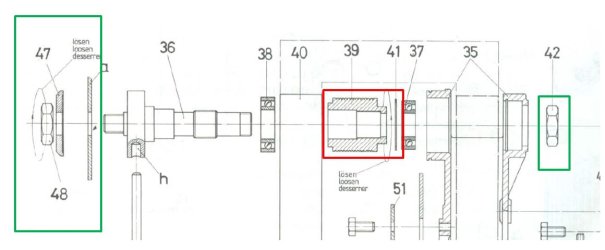
Jetzt stehe ich aber vor dem Problem, die Welle aus dem Gehäuse zu bekommen, da die Lager auch schon "knirschen" und der Riemen "morsch" ist. Ich habe Heißluftfön, Schlagschrauber und sonst was probiert, aber die Riemenscheibe will sich nicht bewegen... und Sie inklusive Welle aus dem Gehäuse zu schlagen, traue ich mich nicht, da erstens das Gehäuse nicht mehr so gut zu bekommen ist und zweitens die "auspressgewalt/die Schläge" bei dem hinteren Lager voll auf den Seegering und dessen Sitz gehen - bin ich zu ängstlich? Die Lager an sich machen (bei erhitztem Gehäuse) den Eindruck, als ließen sie sich leicht aus den Sitzen nehmen (kann sie ein Stück mit der Welle bewegen - bis zum Seegering des hinteren Lagers), aber wie gesagt, die Kraft um die Welle aus dem hinteren Lager zu bekommen scheint mir etwas zu viel für das Material zu sein - irgendwelche Ideen?
LG Jakilus