Hennus
ww-kastanie
Wobei die 20cm Vorholz bei dem Tor etwas zuviel sind.
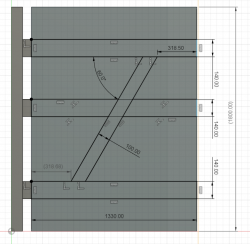
also wenn ich den 60° Winkel einhalten will, hab ich an die 30 cm Vorholz.
Was ist jetzt wichtiger? Vorholz verringern oder Winkel einhalten?
Wobei die 20cm Vorholz bei dem Tor etwas zuviel sind.
sehe ich auch so, die Leisten sind zu schwach,
wenn du da noch den Stirnversatz ausarbeitest bleibt da nicht mehr viel.
Wie kommt der Sinneswandel von einer sehr modernen Garage mit klaren Linien zu der
rustikalen Torlösung?...
Gut, ist Geschmacksache... mir gefällt beides aber nebeneinander?
Hier meine Werkstatttüren 22mm Douglasie 2,2m mal 1,0m je Flügel.
Das wiegt (deine hat mehr Fläche) und die GAH Alberts Beschläge haben ordentlich zu tun.
Die haben vom Wind schon öfter eine gewischt bekommen und halten seit 6 Jahren.
Wie schon gesagt wurde, die Streben in etwa 60° * und stärkere Leisten.
*bei mir sind es etwas weniger.
Anhang anzeigen 79549
Anhang anzeigen 79550
für deine Proportionen (1,8 x 1,4m)
sähe es dann so aus: Skizze
Die mittlere Querleiste würde ich setzen wegen dem erforderlichen Band.
Die Strebe "durchlaufen" lassen (ist natürlich unterbrochen) sonst wird der Überhang zu groß
wenn man die 60° halbwegs einhalten möchte.
Bei dir sieht man die mittlere Strebe kaum, von daher kann du die auch (fast) beliebig hoch setzen.
Auf der Skizze ist sie nach dem goldenen Schnitt gesetzt.
Ein Schloss oder Griff könnte auch ein Argument für die Anordnung sein....
Anhang anzeigen 79551
viel Erfolg

Ich würde Vorholz so knapp wie möglich halten. So dass es nicht abspalten wird.Vorholz verringern oder Winkel einhalten?
Ich würde Vorholz so knapp wie möglich halten. So dass es nicht abspalten wird.
Winkel ist dann hal so wie er ist.
Wüsste jetzt nichtmal auf Anhieb, ob 60° wirklich das theoretische Optimum wäre, oder nicht eher 45...
Übrigens: Ist dir bei der Zeichnung aufgefallen dass Stirnversatz nicht so ganz einfach zu konstrueren ist? Oder wolltet du ganz darauf verzichten?
Guuden,
die Strebe wirkt am besten desto stärker sie den Verlauf einer Diagonalen hat.
Um möglichst genügend Vorholz zu halten, ist der "Fersenversatz" eine Möglichkeit.
Dies und andere Ausbildungen eines Versatzes:
https://zimmerer-treff.com/storage/BSWALSzt/wrl-z1/versa/versa.htm
Ein Prob welches mit einem Versatz einhergeht ist, dass der konstruktive Holzschutz
erheblich gestört wird.
Bei freier Bewitterung kann mit chemischem Holzschutz ein wenig Abhilfe geschaffen werden.
60 -65 Grad wird in der schlauen Literatur geschrieben. Wenn's nicht geht, wird halbiert und gibt zwei DiagonalenWüsste jetzt nichtmal auf Anhieb, ob 60° wirklich das theoretische Optimum wäre, oder nicht eher 45...
Find ich hier übetriebenen Aufwand."Fersenversatz"
60 -65 Grad wird in der schlauen Literatur geschrieben. Wenn's nicht geht, wird halbiert und gibt zwei Diagonalen
Ob die zwei dann jeweils genau diesen Winkel haben?60 -65 Grad wird in der schlauen Literatur geschrieben. Wenn's nicht geht, wird halbiert und gibt zwei Diagonalen
Ich würde da ohne Bedenken auf 15cm gehen.für mich so wirkt als wären es mit 30 cm ziemlich viel
Ob die zwei dann jeweils genau diesen Winkel haben?
Ich seh das nicht so eng mit der genauen Gradzahl.
Ich würde da ohne Bedenken auf 15cm gehen.
Wie gedsagt würde ich das Vorholz deutlich geringer halten.was du verändern würdest wegen des stirnversatzes?
Wie gedsagt würde ich das Vorholz deutlich geringer halten.
denke auch, dass das eher theoretischer Natur ist.Wüsste jetzt nichtmal auf Anhieb, ob 60° wirklich das theoretische Optimum wäre, oder nicht eher 45...
bleib bei 14 cm, denn du musst etwa knapp 3cm je Stirnversatz rechnen die du aussparen musst.und die 14 cm und 10 cm von der holzbreite her sind iO?
das ist wirklich wichtig, sich hierbei Mühe zu geben.Wichtig wäre, die Strebe gut stramm einzupassen;
Kann ich jetzt schlecht etwas zu sagen.14 cm und 10 cm von der Holzbreite her sind iO?
Guuden,
nur mal so am Rande, es soll aus einem für ein Tor ungeeigneterem Element
eine perfekte Lösung kreiert werden, und alle machen sich einen Kopp!???
Ist doch jedem selbst überlassen wie und ob er helfen will? Die perfekte Lösung gibt es meist nur in der Theorie, hier heißt es aus etwas Vorhandenem das Beste rauszuholen. Das scheint dir garnicht zu gefallen, das habe ich vom ersten Posting an gemerkt. Dennoch sind hier viele nützliche Informationen für mich zusammengekommen und die Tage wird sich zeigen, wie geeignet/ungeeignet das Element tatsächlich in der Praxis ist.
LG