Frage zu el. Sicherheitsschalter

jp7gti

ww-kiefer
Registriert
20. November 2016
Beiträge
48
Ort
SG
Mich würde das nerven. Bei jedem gewollten Abschalten zwei Schalter? Man kann die Geschichte bei kleinen normalerweise handgeführten Maschinen auch übertreiben.



Fall 2. kannst du immer verwenden. Auch fest angeschlossen.

Das ist mir bewusst komme zufälligen aus dem elektrischen Bereich.


Mir erschließt es sich auch noch nicht so richtig warum hier unbedingt ein komplizierter Aufbau mit extra Not-Aus-Schaltern gewünscht ist.

Einfache Lösung ist immer noch ein Not-Aus-Schalter im Anbaugehäuse eingebaut in eine normale Schukoverlängerung und dann einfach in den K700 Motorstarter eingesteckt. Kosten so ca. 120€

Man kann natürlich auch eine deutlich teurere Lösung bauen, ist nur Sinn frei.
 

Mitglied 84226

Gäste
Notausschalter in Reihe?
Da kann man sich beim ersten Notaus noch überlegen ob wirklich ein Notfall vorliegt?
Sorry, aber das ist gefährlicher Quatsch.
Wenn, dann müssen die Schalter parallel angeordnet sein, und verteilt an der Maschine angebracht. So dass von jeder Position aus ein Notaus erreicht werden kann.
Andreas
 

Gelöschte Mitglieder 44249

Gäste
Was soll überhaupt eine parallschaltung bei Not Halt
 

jp7gti

ww-kiefer
Registriert
20. November 2016
Beiträge
48
Ort
SG
Wieso auch nicht? Gängie Praxis Notaus Schalter (öffner; Drahtbruchsicher) in Reihe. Was soll eine Paralellschaltung ohne seperates Notaus-Relais bringen?
:emoji_thinking:

Ich glaube hier gibt es ein Missverständnis zwischen der Schaltung und der Einbaulage.

In Reihe bezieht sich auf die elektrische Schaltung.
 

schrauber-at-work

ww-robinie
Registriert
24. April 2016
Beiträge
8.660
Alter
46
Ort
Neuenburg am Rhein
Tach,

Ich glaube hier gibt es ein Missverständnis zwischen der Schaltung und der Einbaulage.

Äähm, bei mir nicht :emoji_nerd:
Ob man die Schalter senkrecht oder waagerecht montiert ist eher Frage von Einbauraum, Geschmack.....

In Reihe bezieht sich auf die elektrische Schaltung.

Richtig, was Hondo paralle verschalten möchte sollte er mal am besten auflösen:emoji_wink:
Gruß SAW
 

uli2003

ww-robinie
Registriert
21. September 2009
Beiträge
14.438
Alter
59
Ort
Wadersloh
Ich werfe mal Not-Aus Taster in den Raum, bei separat ausgeführtem Spulenkontakt am Schalter mit Unterspannungsauslösung.
Dann hat die Not-Aus Reihenschaltung nur wenig Last zu schalten, und man muss nur einen Schalter wieder einschalten.

Oder verriegeln die Taster generell?
 

schrauber-at-work

ww-robinie
Registriert
24. April 2016
Beiträge
8.660
Alter
46
Ort
Neuenburg am Rhein
Gibt es beides. Hatte bisher nie das Bedürfnis danach an Handbetriebenen Maschinen nen Notaus vorzusehen.
Macht eher Sinn bei automatisch laufende Maschinen / Anlagen / CNC falls im Automatikbetrieb was schief läuft.

Gruß SAW
 

Mitglied 84226

Gäste
Hallo,
Es kommt darauf an ob die Schalter eine Selbsthaltung eines Schützes aufheben, oder ob die Schalter ein Hilfsschütz betägigen welches die Abschaltung übernimmt.
Andreas
 

Tyler

ww-kirsche
Registriert
28. Dezember 2009
Beiträge
148
Ort
Nordhessen
Passt. Ich benötige Fall 2 und hab mal gemalt :emoji_slight_smile: Darstellung sicher nicht Normgerecht (und auch ohne Erde) aber ich hoffe verständlich (und generell richtig).

Deine Skizze hat einen leichten Fehler, nach Spannungswiederkehr läuft das Gerät von selbst wieder los.
Leicht korrigiert.
Maschinenschalterkombi.GIF

Betätigung Maschinenschalter nachgetragen.
 
Zuletzt bearbeitet:

Mitglied 84226

Gäste
Hallo,
du must eine Selbsthaltung machen. D.h., du hast einen weiteren Schließerkontakt, der beim 1. Betätigen eines Ein-Tasters anzieht, und den Ein-Taster überbrückt. Die Selbsthaltung muss wieder beim Ausschalten aufgehoben werden, deswegen kommt in diesen Strang ein Öffner-Taster.
Siehe auch hier: http://www.meine-schaltung.de/schaltung/et/selbsthaltung/
 

Tyler

ww-kirsche
Registriert
28. Dezember 2009
Beiträge
148
Ort
Nordhessen
Wenn ich mich nicht irre, werden die Kontakte bei dieser Art Schalter
mechanisch vom Ausschalter über den Anker in der Schützspule geöffnet.
Die Selbsthaltung über die Notausschalter ist nur Bonus.
 

Mitglied 84226

Gäste
Hallo,
nein. Damit die Schützspule überhaupt abfällt muss der Stromkreis der Selbsthaltung unterbrochen werden.
Das macht man mit einem einfachen Taster. Die Ein-Ausschalter jeder Maschinenschaltung sind eigentlich alles Taster - Abgesehen vom Not-Aus, das ist ein Rastender Taster typischer Weise.
Der Not-Aus kommt ebenfalls in die Selbsthaltung in Reihe zum Aus-Taster. Wird der Not-Aus betätigt, fällt das Schütz ab und die Maschine ist stromlos. Einschalten ist nicht möglich solange der Not-Aus verriegelt ist. Nach Entriegeln kann die Maschine wieder gestartet werden.
Andreas
 

schrauber-at-work

ww-robinie
Registriert
24. April 2016
Beiträge
8.660
Alter
46
Ort
Neuenburg am Rhein
Nabend,
Es kommt darauf an ob die Schalter eine Selbsthaltung eines Schützes aufheben, oder ob die Schalter ein Hilfsschütz betägigen welches die Abschaltung übernimmt.

Falsch im Sinne der Maschinenrichtlinie!
Notaus Taster sind ausnahmslos als Öffner erlaubt (Thema Drahtbruch).

Halte ich als gefährliches Halbwissen was Du hier publizierst!

Dein "Hilfsschütz" ist wenn ein Notaus Relais, der Notaus Taster ist in diesem Fall ebenfalls ein Öffner!
Kannst ja mal z.B. Bei Pilz o.ä. Nachlesen

Der Not-Aus kommt ebenfalls in die Selbsthaltung in Reihe zum Aus-Taster. Wird der Not-Aus betätigt, fällt das Schütz ab und die Maschine ist stromlos. Einschalten ist nicht möglich solange der Not-Aus verriegelt ist. Nach Entriegeln kann die Maschine wieder gestartet werden.

So schon eher Sinnvoll, dein Paralllelschaltung oder einen Schliesserkontakt vergiss mal ganz schnell. Im Fall liest es jemand mit noch weniger elektrotechnischem Verständnis oder keiner Ahnung von "Maschinensicherheit" und orientiert sich daran :emoji_fearful:

Ist nicht so trivial, habe schon etlicje Anlagen/ Maschinen geplant, in Betrieb genommen, abgenommen, CE Konformitätserklärungen erstellt ( mit entsprechener Risikoanalyse). Sehr umfangreiches Thema, kann ich Dir versichern.

Nix für Ungut aber bitte nicht irgewas ergoogeltes hinschreiben wenn man von dem Themenkomplex nicht wirklich Ahnumg hat.

Gruß Stephan
 

Mitglied 84226

Gäste
Hallo,
Angenommen du hast eine Maschine mit mehreren zuschaltbarenMotoren. Z.B. Vorschubapparat etc. Im Notfall sollte dieser auch abgeschaltet werden. Sowas geht nur über Hilfsschütze. OK, kommt wohl eher weniger vor. Ebenfalls der Fall dass die Last im Schützkreis zu hoch für einen Not-Ausschalter in diesem Stromkreis wäre.
Andreas
 

schrauber-at-work

ww-robinie
Registriert
24. April 2016
Beiträge
8.660
Alter
46
Ort
Neuenburg am Rhein
Wenn Notaus dann muss zwingend alles in einen "sicheren Zustand" gebracht werden, bedeutet manchmal etwas mehr als nur Strom aus.

Der Sinn dahinter an eine OF/HKS/Stichsäge...mit Notaus zu versehen erschliesst sich mir so oder so nicht.
Wiederanlaufsicherung durchaus sinnvoll (brachte meine Basis mit, mittlerweile verkauft) Notaus m.M.n. Völlig unnötig.
Aber jeder wie er es will und für richtig hält. Meine HKS/OF/..... brauchen jedenfalls keinen.

Im Tisch ein Wiederalaufschutz und fertig.
Gruß Stephan
 

uli2003

ww-robinie
Registriert
21. September 2009
Beiträge
14.438
Alter
59
Ort
Wadersloh
Drahtbruchsicherheit ist ein wichtiges Kriterium, da hat Stephan absolut recht.

Not-Aus ist bei Stichsäge und dergleichen sicher nicht nötig, aber einen ‚groben‘ Taster zum Abschalten fände ich auch komfortabel :emoji_slight_smile:
 

WANNA1904

ww-kirsche
Registriert
12. Februar 2015
Beiträge
149
Ort
NRW
Deine Skizze hat einen leichten Fehler, nach Spannungswiederkehr läuft das Gerät von selbst wieder los.
Leicht korrigiert.
Anhang anzeigen 60786

Betätigung Maschinenschalter nachgetragen.

Ach OK, nach Nachdenken verstanden (hoffe ich): Die Spannungsversorgung für die U-Abschaltung (ein Schütz oder so?) muß nach dem zugehörigen Schalter liegen (in deiner Zeichnung unterhalb der beiden Schalter) statt davor (in meiner Zeichnung links der Schalter).
Ich hatte mich schon etwas gewundert, warum das z.B. auf dem Anschlußplan von diesem von Boris erwähnten Schalter explizit so ist:
https://www.elektro-kahlhorn.de/ein...lm-SNa75mZ2PKbFG1ycn-haej9E_b7kxoC-NEQAvD_BwE

Da bin ich aber noch davon ausgegangen, dass diese roten und grünen "Tasten" auch mechanisch (=dauerhaft) schalten und nicht "nur" Taster sind, wie ich inzwischen in diesem Tread gelernt habe. Und dann muß die Spannungsversorgung des Schützes natürlich hinter diesem abgegriffen werden.

Bei meiner Zeichnung hatte ich mich da garnicht drum gekümmert, weil ich sowas wie den obigen Schalter im Kopf hatte und der ja schon intern richtig verdrahtet ist (und ich als Anwender den kompletten Schalter dann einfach als "Blackbox" anschließe)

Aber trotzdem vielen Dank für den wichtigen Hinweis. Es sind ja nicht bei allen in Frage kommenden Schaltern diese Verdrahtungen schon vorgegeben und ich weiß noch nicht, welchen genau ich nehme.

Aber nochwas zum generellen Verständnis:
So wie ich das jetzt sehe, ist es (für die prinzipielle Funktionsweise der Schaltung!) egal, wo der/die NA-Schalter sitzen, solange er/sie (alle) mit dem "Schütz" des Maschinenschalters (In Deiner Zeichnung A1/A2) in Reihe sitzen.
Also wie Du gezeichnet hast hinter dem zweipoligen Schalter oder wie ich gezeichnet habe davor oder einer davor und einer dahinter oder einer in dem blauen Strang und einer in dem braunen - solange sie nur vor den Verzweigungen zu A1/A2 sitzen. Richtig?

(Da es im Tread hierzu Unklarheiten gab: Ich gehe hier von folgender Funktionsweise aus, auch wenn es vermutlich andere gibt: Normalbetrieb = dauerhaft geschlossener einpoliger Schalter. Bei Betätigung wird der Schalter dauerhaft geöffnet, bis er wieder zurückgestellt wird)

Das die Anordnung dennoch eine sicherheitsrelevante Komponente hat, ist mir schon klar, weswegen ich auch Deine Lösung umsetzen werde:
Wenn die NA-Schalter hinter dem zweipoligen Schalter liegen, sind sie und die Zuleitungen(!) spannungsfrei solange der Schalter offen ist. Das kann natürlich in einem Umfeld, in dem hin und wieder auch ohne Strom mit scharfen Schneiden hantiert wird, von Bedeutung werden.

Gruß Jens
 

Anhänge

  • upload_2019-3-18_9-18-29.gif
    upload_2019-3-18_9-18-29.gif
    11,3 KB · Aufrufe: 8

Mitglied 84226

Gäste
Hallo,
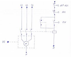
ich zeige dir mal meine Variante die ich eben schnell gezeichnet habe.
Eine Schütz-Schaltung mit 3 Hauptkontakten und 1 Hilfskontakt. Alles Schließer.
Taster für Ein/Aus und 1 Notaus. Weitere Notaus können in Reihe dazu geschaltet werden.
Wird der Taster EIN gedrückt zieht das Schütz an und schließt den Hilfskontakt. Lässt man den Taster los dann fließt der Strom zur Schützspule über diesen Hilfskontakt solange wie der Taster AUS oder NOT-AUS gedrückt werden.
Wird der NOT-AUS wieder entriegelt kann durch drücken von EIN neu gestartet werden. So ist die Maschine gegen Wiederanlauf bei Stromausfall und Not-Aus gesichert.
Anstatt L1, 2, 3 kann man natürlich auch nur 1 Phase schalten. Bei Handgeführten Geräten mit Euro-Stecker bzw. Schuko-Stecker kann man auch N schalten. Sehe gerade, der Scanner hat die Bezeichnung L1 oberhalb des Notaus geschluckt.
Gruß Andreas
Schützschaltung1.jpeg
 

WANNA1904

ww-kirsche
Registriert
12. Februar 2015
Beiträge
149
Ort
NRW
Hey zusammen,

oh mann, da hab ich ja deutlich mehr ausgelöst, als gedacht..... :emoji_grin:

Aber dennoch Danke an alle - viel Gelernt dabei.
Neben fachlichem auch mal wieder den einen Riesenvorteil direkter Gesprächen, bei denen man mit einem einfachen "Moment, haste falsch verstanden, ich meinte ..." oder "OK, verstehe ich, sehe ich aber anders" einiges abkürzen kann:emoji_slight_smile:. Sei's drum.

Aber eines noch: Ich versteh schon, dass meine Idee (Schalter + Notaus) für den einen oder andern übertrieben/unsinnig erscheint.
Ich hab aber auch nicht erwähnt (da für die Frage unwichtig), dass mein Tisch ca. 2 Meter lang ist und der Hauptschalter wohl so grob in die Mitte kommt.

Da kann ich mir Situationen vorstellen, bei denen ich eine laufende Maschine "schnell" ausschalten will, aber nicht in Reichweite des Hauptschalters bin. Selbst wenn keine wirkliche Notfallsituation besteht, aber ich z.B. das Werkstück nicht loslassen kann/will oder ich "nur" ein Stichsägeblatt retten will.

Daher erscheinen mir "Zweit"-Ausschalter an jeder Ecke - na ja an jeder vorderen Ecke, wir wollen ja nicht übertreiben - sinnvoll.
Das das keine Notausschalter sein müssen, sondern man das auch mit "normale" Schaltern/Tastern realisieren kann - geschenkt. Aber die Dinger machen schon was her - und im wirklichen Notfall reagieren sie auch auf Knie/Fuß-Bedienung......:emoji_sunglasses:

Wenn ich sie nie brauche - egal, stört nicht.
Wenn ich sie einmal brauche und nicht habe - scheiße.
Wenn ich sie zuoft aus Versehen drankomme - auch scheiße.

Ebenfalls noch nicht erwähnt: der Tisch ist aus Alu-Profil+Holzplatten, sodaß ich die Kabel weitgehend unsichtbar und mechanisch geschützt verlegen kann - ein auch nicht zu vernachlässigener Punkt. Lange offen verlegte Kabel/-kanäle an einer (Holz-)werkbank fände ich weder schön noch ggf. sicher.

Gruß Jens
 
Oben Unten