Hallo zusammen,
auf unserer Loggia will/muß ich eine Abdeckung auf der Wetterseite neu machen (s. Bild, die untere Kante ist morsch). Bei der Gelegenheit wollte ich den dahinterliegenden Kniestock zugänglich machen, sprich die bisherige Abdeckung durch eine Tür ersetzen. Die bisherige Abdeckung zu ersetzen wäre unproblematisch. Eine Brettertür in einem Innenraum oder gut wettergeschützt wäre auch nicht problematisch (die Brettertür-Abbildung ist hier aus dem Forum). Der Teufel steckt in den Details. Wie würdet ihr das angehen? Irgendwie sollte am Ende durch die Fuge kein Wasser eindringen.
Der obere Teil über dem Fenster wird erneuert, bleibt aber fixiert. Der Haken kommt raus. Die Tür nimmt die rechte Hälfte ein. Dabei hört sie oben 5 mm (?) unter der Kante auf. Anschlag links. Keine Griffe, stattdessen greift man rechts hinter die Bretter und zieht auf (1-2 cm Überstand sollten dafür reichen). Material Nut und Feder 19mm, Fi-Ta, offwhite lackiert. Brettertür als klassisches "Z" (s. Bild) oder mit Tischlerplatte.
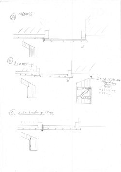
Ich hab mir drei Varianten überlegt (siehe Skizze):
A: Aufgesetzt. Die Tür wird als Ganzes als zusätzliche Ebene drauf gepflanzt. Hat keine für Schlagregen offene Fuge. Trägt aber dick auf.
B: Halb aufgesetzt: Nur die vordere Bretterlage steht hinaus. Die Tür hat dann auf der Höhe des Anschluß an die obere Lage eine Ecke, damit sie aufschwingen kann (Breite = Stärke N&F + Überdeckung Scharnier + Spiel). Hat keine Fuge. Trägt etwas auf. Ecke eckt optisch an. Ecke bietet Einfallstor für Regen (würdet ihr die Ecke mit einem Minidach überdachen).
C: Eingelassen: Die Tür ist ein Teil der Bretterwand, in der Fuge werden die Scharniere dazwischen gepflanzt. Ist einfach zu bauen, optisch klar und trägt nicht auf. Hat aber eine Fuge (wie abdichten?). Und die Scharniere stehen im Regen.
Für die Scharniere würde ich Türbänder nehmen bei Varianten A & B. Bei C einfache Scharniere. Paßt das? Oder Topfscharniere? Gibt's die Scharniere in wetterfesten Varianten?
Wetterschenkel würde ich weglassen. Oder liege ich da falsch? Wenn ja, wie schließe ich den an? Das Wasser sollte ja nicht dahinter laufen.
Eine Antwortvariante ist auch, "mach bloß keine Tür!"
auf unserer Loggia will/muß ich eine Abdeckung auf der Wetterseite neu machen (s. Bild, die untere Kante ist morsch). Bei der Gelegenheit wollte ich den dahinterliegenden Kniestock zugänglich machen, sprich die bisherige Abdeckung durch eine Tür ersetzen. Die bisherige Abdeckung zu ersetzen wäre unproblematisch. Eine Brettertür in einem Innenraum oder gut wettergeschützt wäre auch nicht problematisch (die Brettertür-Abbildung ist hier aus dem Forum). Der Teufel steckt in den Details. Wie würdet ihr das angehen? Irgendwie sollte am Ende durch die Fuge kein Wasser eindringen.
Der obere Teil über dem Fenster wird erneuert, bleibt aber fixiert. Der Haken kommt raus. Die Tür nimmt die rechte Hälfte ein. Dabei hört sie oben 5 mm (?) unter der Kante auf. Anschlag links. Keine Griffe, stattdessen greift man rechts hinter die Bretter und zieht auf (1-2 cm Überstand sollten dafür reichen). Material Nut und Feder 19mm, Fi-Ta, offwhite lackiert. Brettertür als klassisches "Z" (s. Bild) oder mit Tischlerplatte.
Ich hab mir drei Varianten überlegt (siehe Skizze):
A: Aufgesetzt. Die Tür wird als Ganzes als zusätzliche Ebene drauf gepflanzt. Hat keine für Schlagregen offene Fuge. Trägt aber dick auf.
B: Halb aufgesetzt: Nur die vordere Bretterlage steht hinaus. Die Tür hat dann auf der Höhe des Anschluß an die obere Lage eine Ecke, damit sie aufschwingen kann (Breite = Stärke N&F + Überdeckung Scharnier + Spiel). Hat keine Fuge. Trägt etwas auf. Ecke eckt optisch an. Ecke bietet Einfallstor für Regen (würdet ihr die Ecke mit einem Minidach überdachen).
C: Eingelassen: Die Tür ist ein Teil der Bretterwand, in der Fuge werden die Scharniere dazwischen gepflanzt. Ist einfach zu bauen, optisch klar und trägt nicht auf. Hat aber eine Fuge (wie abdichten?). Und die Scharniere stehen im Regen.
Für die Scharniere würde ich Türbänder nehmen bei Varianten A & B. Bei C einfache Scharniere. Paßt das? Oder Topfscharniere? Gibt's die Scharniere in wetterfesten Varianten?
Wetterschenkel würde ich weglassen. Oder liege ich da falsch? Wenn ja, wie schließe ich den an? Das Wasser sollte ja nicht dahinter laufen.
Eine Antwortvariante ist auch, "mach bloß keine Tür!"